Bouwkeet huren 32 personen | Set 5

Prijs op aanvraag

Minimale huurperiode: 4 weken

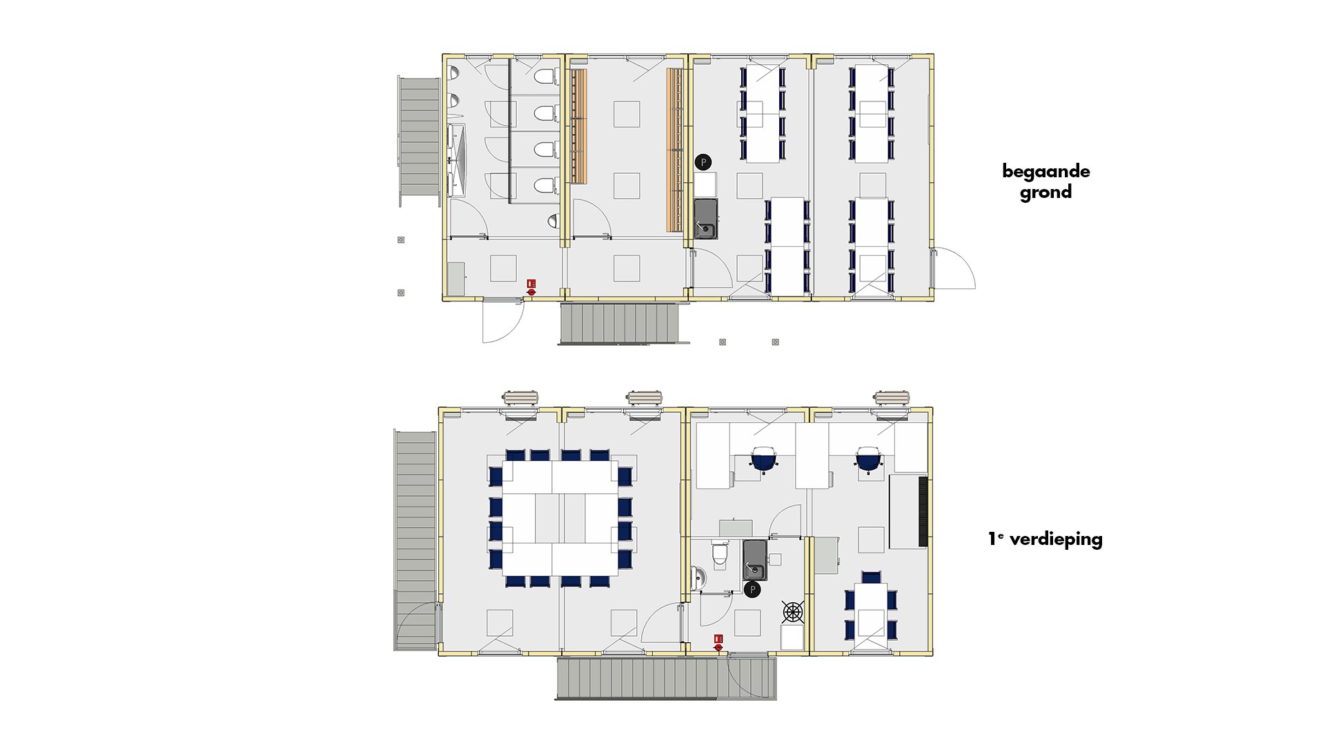
Comfortabele bouwkeet voor 32 personen bestaande uit 8 units. De bouwkeet kunt u ingericht huren met meubilair, keukenblok, toilet, koffieapparatuur en koelkast. Optioneel in eigen huisstijl en met zonnepanelen. Wilt u de bouwkeet anders inrichten of een extra unit erbij plaatsen? Dankzij de modulaire bouw passen we uw bouwkeet eenvoudig aan op uw wensen.

Algemeen

Aantal kamers
8 Kamer(s)
Keuken
2 keukenblokken
Toiletten
5 st.
Urinoirs
3 st.
Waterkranen met wasbak
6 st.
Verwarming
Elektrisch
Zonnepanelen
Op aanvraag
Isolatiewaarde
3,84 (RC)
Personen
32

Afmetingen

Lengte
1200 cm
Breedte
604 cm
Hoogte
2 hoog

Afwerking

Deuren
7 st.
Aantal ramen
21 st.
Ramen
Draai/kiepraam
Luiken
Aluminium rolluiken
Buitenbekleding
Witte panelen (metaal)
Binnenbekleding
Kunststof panelen
Vloerbedekking
Marmoleum

Downloads

Documenten
Bouwketen brochure
Omschrijving Bouwkeetset 5
Bouwkeet set 5 huren

Daarom uw bouwkeet huren bij RECO:

  • Professionele en moderne uitstraling
    Nette uitstraling en eenvoudig schoon te houden met een modern design, ingebouwde kabelgoten, marmoleum vloeren en kunststof wandpanelen. Op aanvraag leveren we uw bouwkeet in uw eigen huisstijl.
  • ARBO-proof
    Voor de beste bouwkeet heeft RECO overal aan gedacht. Onze standaard bouwketen sets zijn volledig ingericht volgens de ARBO-richtlijnen voor inzet als tijdelijk kantoor, sanitaire voorziening of schaftkeet.
  • Anti-inbraak en vandalisme-werend
    Onze bouwketen zijn standaard voorzien van metalen buitenbekleding, driepuntssloten op alle deuren en draai-kiepramen met aluminium rolluiken.

Duurzaam en comfortabel:

  • Uitstekende isolatie
    Onze bouwkeet biedt een hoge isolatiewaarde van 3,84 (RC) met HR++ dubbelglas en isolerende wandpanelen. Daardoor heeft u jaarrond een comfortabele werkplek.
  • Standaard verlicht met ledverlichting
    Met onze ledverlichting heeft u uitstekende verlichting voor werkplekken en bespaart u tot 70% op energieverbruik ten opzichte van traditionele tl-verlichting.
  • Elektrische verwarming
    Alle bouwketen zijn standaard voorzien van elektrische radiatoren met een ingebouwde thermostaat. Op aanvraag installeren we airconditioning in de bouwkeet.
  • Duurzaam en zuinig
    Dankzij de uitstekende isolatie, energiezuinige ledverlichting en de modulaire bouw huurt u met een bouwunits van RECO een duurzaam bouwkeet. Op aanvraag rusten we de bouwkeet uit met zonnepanelen.
Bouwkeet huren met huisstijl en logo

Verhuurservice van advies tot montage

  • Maatwerkcombinaties
    Dankzij de modulaire bouw van de bouwketen zijn de configuratiemogelijkheden eindeloos. Alle bouwketen zijn stapelbaar en schakelbaar met verwisselbare wandpanelen.
  • Transport en montage
    Wanneer u een bouwkeet bij RECO huurt, wordt het geleverd, geplaatst en aangesloten door onze transport- en montagedienst, inclusief toebehoren als elektra en de aansluiting van sanitaire voorzieningen. Zo huurt u al uw materieel bij één verhuurbedrijf en heeft u geen omkijk meer naar de installatie.
Bouwkeet huren transport en montage